Cases
客户来自苏州吴江的纺织之乡,是一家大型的民营纺织企业,主要是以纺织品的研发,销售,生产,纺织品的定型烘干为主;产品在国内外销售,主要面向东南亚市场,市场份额可达到每年2个亿的销售额。客户在布料定型工艺过程中会产生高温油烟废气需要及时收集过滤以满足环保达标排放要求,客户主动找到科朗兹环保在定型机油烟废气治理上有技术实力的公司给予方案和技术支持。

那定型机是如何产生高温油烟废气的呢?这要从它的工作原理说起了:
定型机的工作原理是通过导热油来对定型机内的空气对所织的物体进行加温,当加温物体达到一定温度时就可发生变化达到定型目的。定型机主要有五部分组成,包括上料部分、整纬器、链条、烘箱体及落布卷布装置。在烘箱体部位当中产生的高温油烟废气居多,高温气体中含有染料、染料助剂(含蜡质、溶剂、乳化剂、高分子单体)、润滑油、纤维类颗粒物等污染物质,废气温度大约为150~190℃,废气中油烟的浓度根据布料和定型的温度的不同而有所不同;定型机高温油烟废气成分复杂,油烟浓度一般为200~1500mg/m3。

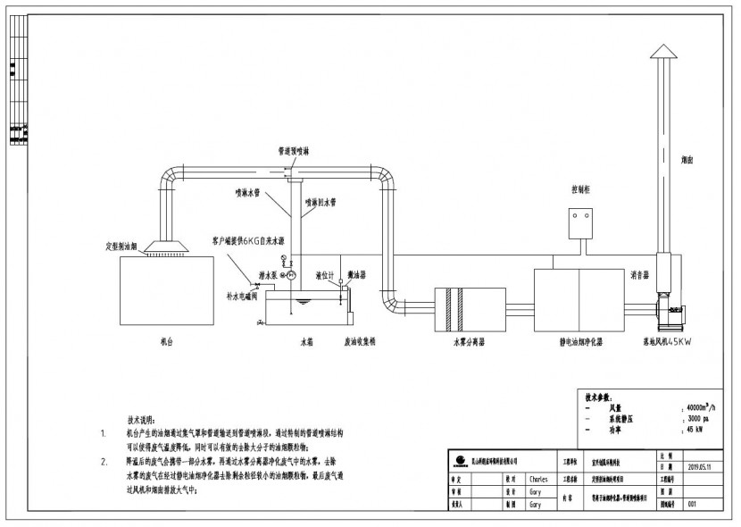
科朗兹公司技术人员针对定型机高温油烟废气治理的现场进行勘察和了解客户的痛点和需求之后,为客户量身打造了一套方案既可以满足环保达标排放要求,也可以满足客户日常生产的要求;采用的工艺是:首先通过湿法冷凝器对高温的油烟颗粒物进行捕捉过滤,并对其进行降温;其次通过水雾分离器将水汽分离;通过静电油烟机对剩余细小的油烟进行收集过滤;针对定型机高温油烟废气治理,科朗兹环保有很好的成功案例并能够有效的帮助客户解决问题。

针对定型机高温油烟废气治理收集,室内排风管道收集通常采用镀锌焊接管道,壁厚为2mm焊接制作而成,耐温可达到200℃以上,不会有漏风影响;

定型机高温油烟废气治理的系统设备安装于室外楼顶处,设备整齐摆放,多级深层次过滤完全符合环保达标排放要求和客户的生产要求,终验收顺利通过,客户很满意。


联系:技术支持
电话:0512-53256185
手机:152-5013-8333
传真:0512-53256185
Q Q:747488661
邮箱:15250138333@163.com
地址:江苏省苏州市太仓市浏河镇新塘新谊西路32号